Ab sofort sind die Kettenantriebe EA-K für die Hauptschließkanten für LogiKal von Orgadata verfügbar. Orgadata ist ein Software-Unternehmen mit Sitz in Deutschland und einer weltweiten Vertriebsstruktur. Vor 40 Jahren hat Orgadata es sich zum Ziel gesetzt, den Fenster-, Türen und Fassadenbau zu digitalisieren. Die Miet-Software LogiKal ist ein modernes Werkzeug, mit dem Fenster-, Türen- und Fassadenbauer ihre Produkte bis ins Detail planen und auch produzieren können, inklusive CAD und CNC Anbindung für den Metallbau 4.0. LogiKal ist einsetzbar für alle gängigen Profilsysteme.
LogiKal von Orgadata führt den Anweder durch den Planungsprozess. Im ersten Schritt wählt der Anwender die zu verbauenden Elemente und das passende Zubehör aus. Hersteller bieten den Verarbeitern einen Online-Katalog an, aus welchem die Produkte ausgewählt werden. Der Fensterbauer wählt z.B. aus den Katalogen Profilsystem, Scharniere bis hin zu Antriebshersteller und Antriebsvariante. SIMON PROtec stellt die Kettenantriebe EA-K inklusive der Konsolen für die digitale Planung zur Verfügung. Die Software LogiKal kann zudem den Verarbeitern auf Wunsch die entsprechenden Daten zur Fensterproduktion für CNC-gesteuerte Doppelgehrungssägen und Profilbearbeitungsmaschinen bereitstellen. Die Programmierung an den Maschinen entfällt damit vollständig.
Der Online-Katalog von SIMON PROtec zum Mieten und Download umfasst die Kettenantriebe für die Hauptschließkanten EA(230)-K-30 und EA(230)-K-50 mit den Konsolen. Sprechen Sie mit Ihrem Orgadata Vertriebspartner und bestellen Sie den neuen SIMON PROtec Katalog. Gerne stehen wir Ihnen beratend zur Seite.
Mehr Informationen über LogiKal von Orgadata finden Sie auf www.orgadata.com
Kettenantriebe EA(230)-K-30 und EA(230)-K-50 sind jetzt zum Mieten und Download bei Orgadata verfügbar.
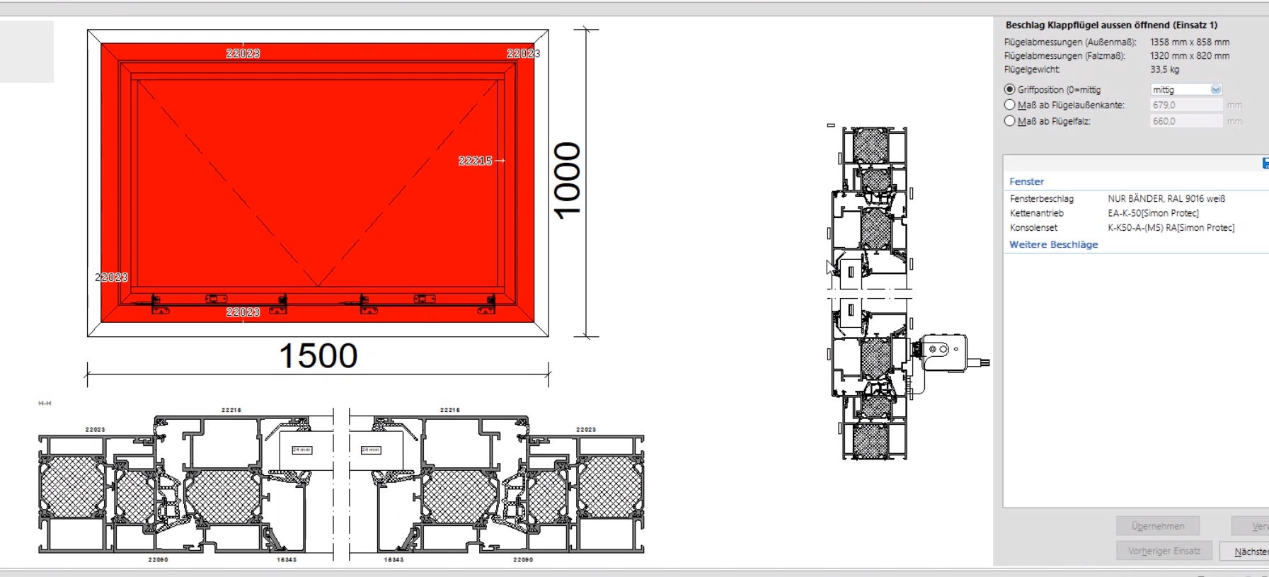
Zum Fensterflügel werden Maße und Fensterbeschlag eingegeben und die Antiebstechnik ausgewählt: Kettenantrieb und Konsole von SIMON PROtec.
COM_EB_IFRAME_COOKIE_AGREE_CONTENT